Réf. : Villa avec étang de peche à 7972 Beloeil Ellignies-Sainte-Anne
REF-931- Ellignies-Sainte-Anne (Beloeil)- Villa avec étang de pêche.
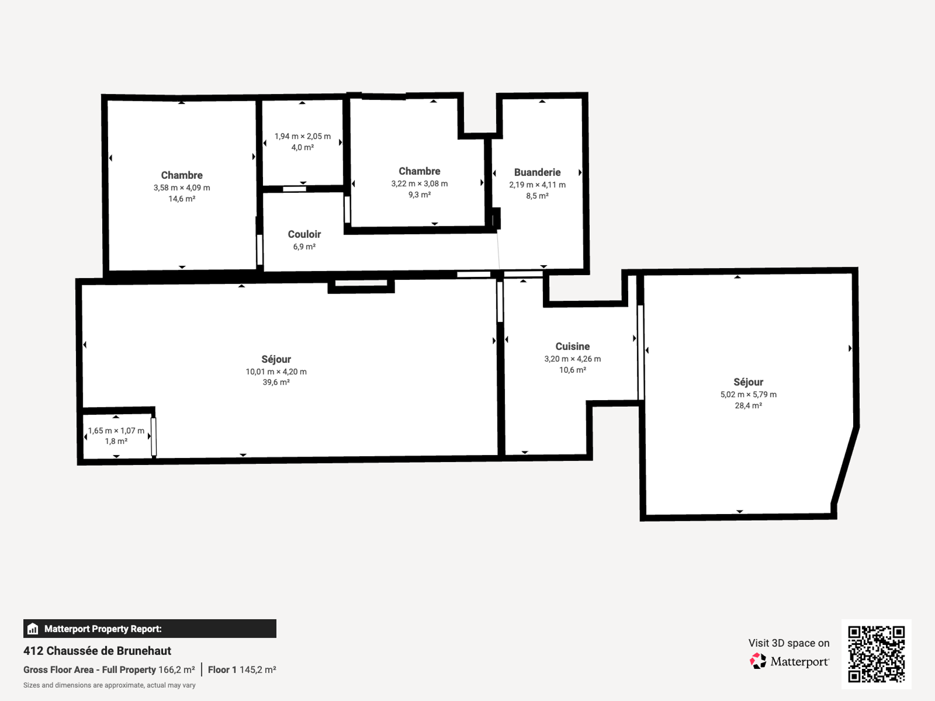
- 2 Séjours, Cuisine équipée, 3 Chambres, Salle de Bains, Buanderie, Véranda, Terrasse, Garages, Parking 191 m2 habitables (source PEB), PEB Cat.D, Pompe a chaleur, Feu au pellet, Chauffage central Mazout
- Etang de pêche à la truite Étang de pêche (d'une siperficie d'environ 1650m2, sont point le plus long 52M, sa largeur d'environ 42 M)
- Buvette, fonds de commerce offert, Garage, WC
- 58 Ares 19 Ca, RC indicatif : 837 Euros.
Acquisition à 380.000 Euros
Infos & Visites sur RDV 0470/900.900 - www.morganimmo.be